東海版 トップページ > 物件検索 > 検索結果一覧 > 【AVANTIA 01】天白区原17期
お知らせ
地下鉄「原」駅徒歩13分☆耐震◎
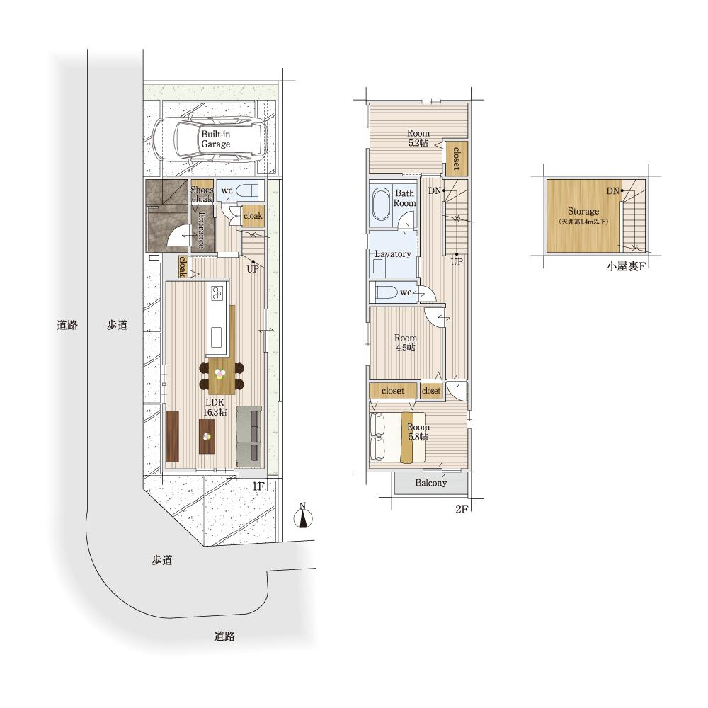
ビルトインガレージのある家
2025/12/12(金)~12/28(日)までクリスマスキャンペーン実施中!
ご成約特典として30万円相当の家電プレゼント!
◇◆AVANTIAクラブ会員募集中◆◇
会員登録で、この物件の詳細・写真等の
限定情報が今すぐ閲覧可能に!
新規会員登録でQUOカードプレゼント!
↓↓ 物件の詳細情報公開中 ↓↓

原小学校・原中学校まで徒歩約1~2分でお子様の通学も安心の距離。近隣には公園も多く緑豊かな環境で、四季の変化を感じられそう。スーパーや病院も揃う住環境が整った立地です。
コンセプト
◆充実の周辺施設・閑静な住宅街◆最寄駅まで徒歩13分で、
通勤・通学にも嬉しい。小学校も徒歩1分なので安心して
お子様を通学させることができます。
AVANTIAが自信を持ってお届けする
【AVANTIA 01(ゼロワン)】シリーズ。
一年を通じて快適に暮らせる性能や安心して暮らせる構造、
奇をてらわず家族に長く寄り添う間取りやデザイン。
理想の我が家を実現するために、
最高の程よさで最良の住まいを
「AVANTIA 01」がカタチにします。
\ AVANTIA 01は、『ZEH水準の家』 /
2030年にはZEH水準の省エネ住宅が、
新築住宅の基準になる予定ですが、
AVANTIA 01は既にZEH水準の家をご提供しております!
安心で快適な暮らしの質を高めてくれる、優れたスペック▽
■シンプルなデザインと上質な素材や機能性な建物設備
■AVNTIAは、住宅性能表示制度最大6項目で最高等級取得
■建築物省エネルギー性能表示制度「BELS」取得
■太陽光発電システム搭載
ZEH水準のAVANTIA 01の家ならエネルギーの使用量を
削減でき日々の光熱費を抑えることができるほか、
初期費用についてもお得な優遇措置が用意されています!
時代が求めるサステナブルで暮らしやすい住まいを追求し、
進化したAVANTIAの01シリーズ。
その他AVANTIA 01についての詳細はAVANTIAブランドサイト
【 AVANTIA 01の商品説明 】メニューをご覧ください!
\ 建物ポイント /
☆-耐震性・耐熱性に優れた構造-
・南西物件で開放的◎
・ビルトインガレージで雨風から愛車を守ります
・小屋裏収納で収納豊富な家
・リビングスルー階段でコミュニケーションアップ
・2階に洗面室/浴室を配置し、バルコニーへのアクセスを楽々に
\ 常 時 見 学 予 約 & 資 料 請 求 受 付 中 /
ご購入を検討中の方、AVANTIAの土地・建物を見てみたい方、
注文住宅の参考にしたい方・・・など
お気軽にご見学ください!
見学前にまずは資料を確認したい方には、
AVANTIAのすべてが分かる
カタログと物件資料一式をお送りします!
皆さまの見学予約・お申込みをお待ちしております。
ロケーション
性能
BELSとは「建築物省エネルギー性能表示制度」のことで、新築・既存の建築物の省エネ性能を、第三者評価機関が評価し認定する制度です。取得した家での暮らしは電気代の節約ができるだけでなく、住宅ローン減税や、国や自治体の省エネ住宅に対する補助金などを活用することもできます。
ZEH水準(等級5)の高い断熱性能を取得。AVANTIA01の家は『夏涼しく、冬暖かい。』住む人にも環境にも優しい住宅です。※参考:愛知県のZEH強化外皮基準(Ua≦0.6)
※Ua値(W/㎡・K)とは住宅の断熱性能を示す指標で、値が小さいほど熱が逃げにくく、断熱性能が高いことを表します。建物の各部位から逃げる熱を合計し、外皮面積で割って求めます。外皮とは、熱的に境界となる外壁・天井・屋根・窓・ドアなどを差します。
設備



底面は傷が目立ちにくく、奥行きワイドなステンレスシンク。小物置き付きでシンク周りの小物をすっきり収納できます。ストック類や普段使わないものを分類できる機能的な収納のキャビネットはソフトクローズレール仕様で静かにピタッと閉まる、安全な引き出し。






毎日使うハブラシなどの衛生用品や化粧品など、細かなものをそれらのきちんと収納できるミラーキャビネットはLEDライトでお顔映りもバッチリ。またキレイアップ水栓は、水栓が上部にあるので周りに水がたまりにくく、水滴を拭き取るだけで簡単キレイ。






水滴にたっぷりの空気を含ませることで、ボリュームのある浴び心地と節水の両立を実現したシャワーヘッド。特殊な表面処理で汚れが付きにくく落としやすい床は、独自の断熱層で寒い季節でも冷たく感じにくいキレイサーモフロア。取り外して洗える便利なマグネットシェルフも採用しています。






手洗いは吐水口とボウルが滑らかにつながったデザイン。便座もシームレスで便座裏には防汚素材を使用し、お掃除のしやすいフチのないデザインとなっています。また、パワーストリーム洗浄で強力な水流が便器鉢の中のすみずみまでしっかりと回り、少ない水で高い洗浄力を発揮します。



構造






アフターサービス
オーナー様の専用サポートコールセンターでは、24時間365日ご相談を受け付けております。当社のほか、提携業者やメーカーより、急なトラブルに対応できるスタッフ1名が駆けつけて対応措置を行います。特殊な工具や部品を必要としない30分以内の作業であれば、出張費用や対応措置への費用は一切いただきません。
AVANTIA 01は、地歴調査と地盤の専門業者が高度な地盤調査を行って、適切な地盤改良が行われた土地に建設されています。しかし、お引渡しから20年の間に地盤の歪みなどによる不同沈下で床が傾いてしまった、などの瑕疵によって建物が損害を受けた場合には、当社規定の保証をいたしております。
築10年以降で起こるのが、目に見えない部分の経年劣化。給排水管の劣化や破損による水漏れや、躯体の傷み・腐食、床下の傷みなどが考えられます。有償ですが、築10年目、20年目当社を通じて必要な補修・修復工事を行っていただくと、さらに10年間の保証期間が延長でき、最大30年まで安心が続きます。
所在地/愛知県名古屋市天白区原 総敷地面積/80.90m² (24.47坪) 敷地面積/80.90m² (24.47坪) 建物面積/93.79m² (28.37坪) (ビルトインガレージ9.94㎡を含む) 建ぺい率/60% 容積率/150% 地目/宅地 用途地域/第二種中高層住居専用地域 都市計画法/市街化区域 構造/在来工法(木造2階建) 道路/西側幅員約8.0m、南側幅員約8.0mの公道に接する 駐車場/1台 建築確認番号/確認サービス第KS124-0410-63693号 施設/公営水道・都市ガス・中部電力・公共下水・側溝 完成日/2025年6月23日 引渡し可能日/即入居可 その他/準防火 20m高度地区、宅地造成等規制法、都市再生特別措置法、都市機能誘導区域外、居住誘導区域内、緑化地域、景観法、都市緑地法 情報更新日/2025年12月6日 次回更新予定日/2025年12月20日
フォトギャラリー






間取り
号地詳細
| 所在地 | 愛知県名古屋市天白区原 | ||
|---|---|---|---|
| 敷地面積 |
80.90m²
(24.47坪) |
建物面積 | 93.79m²
(28.37坪) (ビルトインガレージ9.94㎡を含む) |
| 総敷地面積 | 80.90m² (24.47坪) | 建ぺい率 | 60% |
| 容積率 | 150% | 地目 | 宅地 |
| 用途地域 | 第二種中高層住居専用地域 | 都市計画法 | 市街化区域 |
| 構造 | 在来工法(木造2階建) | 駐車場 | 1台 |
| 道路 | 西側幅員約8.0m、南側幅員約8.0mの公道に接する |
||
| 施設 | 公営水道・都市ガス・中部電力・公共下水・側溝 | ||
| 建築確認番号 | 確認サービス第KS124-0410-63693号 | 取引態様 | 一般仲介 |
| 完成日 | 2025年6月23日 | 入居可能日 | 即入居可 |
| 売主 | 株式会社AVANTIA (国土交通大臣免許(6)第5803号) | ||
| その他 | 準防火 20m高度地区、宅地造成等規制法、都市再生特別措置法、都市機能誘導区域外、居住誘導区域内、緑化地域、景観法、都市緑地法 |
||
| 情報更新日 | 2025年12月6日 | 次回更新 予定日 |
2025年12月20日 |
※「-」と表示されている項目については、情報提供会社にご確認ください。
※「建物30年延長保証」、「建物20年延長保証」は引渡し10年目ごとに有償点検を行い、必要な箇所に有償のメンテナンスの実施したお客様が対象になります。