東海版 トップページ > 物件検索 > 検索結果一覧 > 【AVANTIA 01】四日市市八千代台2期
お知らせ
3/1~4/30まで春の Premium Campaign 実施中
ご成約特典として30万円相当の家具家電プレゼント
~新しい毎日を、新しい家具家電で便利に彩ります~
三岐鉄道三岐線「山城」駅 徒歩18分
全8区画の大型分譲地!敷地最大60坪!
◇◆AVANTIAクラブ会員募集中◆◇
会員登録で、この物件の詳細・写真等の
限定情報が今すぐ閲覧可能に!
新規会員登録でAmazonカードプレゼント!
↓↓ 物件の詳細情報公開中 ↓↓

最寄り駅まで徒歩18分
「山城」駅から「近鉄富田」駅へのアクセスもスムーズです。
周辺環境も充実しており、お買い物にも困りません。
公園が徒歩10分圏内に複数あるので小さなお子様にも嬉しい環境です。
外観・内観共に、各物件それぞれの魅力がつまったお家は全8区画。
オール電化住宅なので毎日のランニングコストも削減できます♪
駐車スペースは並列3台可能です。
コンセプト
AVANTIA 01(ゼロワン)シリーズ
一年を通して快適に暮らせる性能と、
家族の暮らしに長く寄り添うシンプルな住まい。
\ ZEH水準対応の省エネ住宅 /
これからの基準に対応した住まいです。
断熱性・省エネ性に配慮した設計に加え、
太陽光発電システムを標準搭載。
光熱費を抑えながら、快適な暮らしを叶えます。
【住まいのポイント】
・ZEH水準対応
・住宅性能表示制度 最大5項目で最高等級
・建築物省エネルギー性能表示制度「BELS」取得
性能・デザイン・価格のバランスを大切にした、
“ちょうどいい”をカタチにした住まいです。
見学予約・資料請求 受付中!
間取りや仕様の詳細は、号地詳細ページにてご確認ください。
\ 建物ポイント /
【1号地】
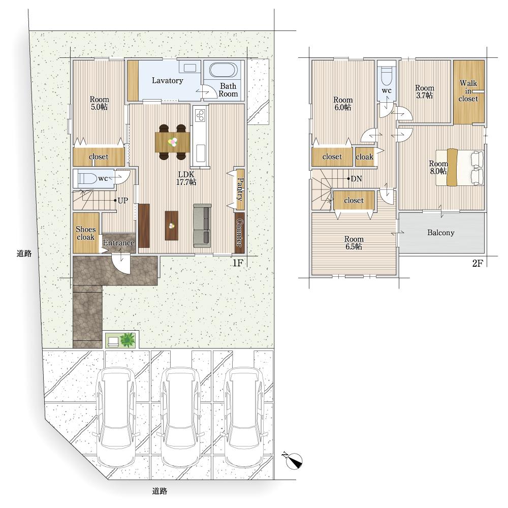
・対面式キッチン・開放的なLDK
・LDKカウンター
・大型ランドリースペース完備
・ウォークインクロゼット
【8号地】
・人気の対面式キッチン
・続き間和室で最大21.8帖のLDK
・水回りのまとまった家事楽動線
・ウォークインクロゼット2ヶ所
気になる間取りは詳細ページからご確認ください!
【充実の設備】
食洗機
浴室暖房乾燥機
エコ給湯器
Low-eガラス
各居室照明
玄関ドア電子キー
宅配BOX
※その他外構工事費用・地盤調査費用もすべて含まれています
【長期保証付】
地盤保証20年間保証
建物30年延長保証
24時間365日緊急対応
住宅設備機器10年間保証
\ 常 時 見 学 予 約 & 資 料 請 求 受 付 中 /
ご購入を検討中の方、AVANTIAの土地・建物を見てみたい方、
注文住宅の参考にしたい方・・・など
お気軽にご見学ください!
見学前にまずは資料を確認したい方には、
AVANTIAのすべてが分かる
カタログと物件資料一式をお送りします!
皆さまの見学予約・お申込みをお待ちしております。
ロケーション
性能
BELSとは「建築物省エネルギー性能表示制度」のことで、新築・既存の建築物の省エネ性能を、第三者評価機関が評価し認定する制度です。取得した家での暮らしは電気代の節約ができるだけでなく、住宅ローン減税や、国や自治体の省エネ住宅に対する補助金などを活用することもできます。
ZEH水準(等級5)の高い断熱性能を取得。AVANTIA01の家は『夏涼しく、冬暖かい。』住む人にも環境にも優しい住宅です。※参考:愛知県のZEH強化外皮基準(Ua≦0.6)
※Ua値(W/㎡・K)とは住宅の断熱性能を示す指標で、値が小さいほど熱が逃げにくく、断熱性能が高いことを表します。建物の各部位から逃げる熱を合計し、外皮面積で割って求めます。外皮とは、熱的に境界となる外壁・天井・屋根・窓・ドアなどを差します。
設備



底面は傷が目立ちにくく、奥行きワイドなステンレスシンク。小物置き付きでシンク周りの小物をすっきり収納できます。ストック類や普段使わないものを分類できる機能的な収納のキャビネットはソフトクローズレール仕様で静かにピタッと閉まる、安全な引き出し。






毎日使うハブラシなどの衛生用品や化粧品など、細かなものをそれらのきちんと収納できるミラーキャビネットはLEDライトでお顔映りもバッチリ。またキレイアップ水栓は、水栓が上部にあるので周りに水がたまりにくく、水滴を拭き取るだけで簡単キレイ。






水滴にたっぷりの空気を含ませることで、ボリュームのある浴び心地と節水の両立を実現したシャワーヘッド。特殊な表面処理で汚れが付きにくく落としやすい床は、独自の断熱層で寒い季節でも冷たく感じにくいキレイサーモフロア。取り外して洗える便利なマグネットシェルフも採用しています。






手洗いは吐水口とボウルが滑らかにつながったデザイン。便座もシームレスで便座裏には防汚素材を使用し、お掃除のしやすいフチのないデザインとなっています。また、パワーストリーム洗浄で強力な水流が便器鉢の中のすみずみまでしっかりと回り、少ない水で高い洗浄力を発揮します。






インターネットとモノを繋げるIoTを採用。玄関ドア、電動シャッター、インターホン、給湯器など、毎日使う建材・設備機器との連携や、オプションでカメラや各種センサ等も同じアプリで連携でき便利で快適な暮らしを叶えます。



構造






アフターサービス
オーナー様の専用サポートコールセンターでは、24時間365日ご相談を受け付けております。当社のほか、提携業者やメーカーより、急なトラブルに対応できるスタッフ1名が駆けつけて対応措置を行います。特殊な工具や部品を必要としない30分以内の作業であれば、出張費用や対応措置への費用は一切いただきません。
AVANTIA 01は、地歴調査と地盤の専門業者が高度な地盤調査を行って、適切な地盤改良が行われた土地に建設されています。しかし、お引渡しから20年の間に地盤の歪みなどによる不同沈下で床が傾いてしまった、などの瑕疵によって建物が損害を受けた場合には、当社規定の保証をいたしております。
築10年以降で起こるのが、目に見えない部分の経年劣化。給排水管の劣化や破損による水漏れや、躯体の傷み・腐食、床下の傷みなどが考えられます。有償ですが、築10年目、20年目当社を通じて必要な補修・修復工事を行っていただくと、さらに10年間の保証期間が延長でき、最大30年まで安心が続きます。
所在地/三重県四日市市八千代台 総敷地面積/1450.58m² (438.80坪) 敷地面積/182.99m² (55.35坪) 建物面積/115.95m² (35.07坪) 建ぺい率/60% 容積率/100% 地目/宅地 用途地域/第一種低層住居専用地域 都市計画法/市街化区域 構造/木造二階建て(在来工法) 道路/南西側幅員約4.5m、北西側幅員約5.0mの公道に接する 駐車場/3台 建築確認番号/確認サービス第KS125-0410-50836号 施設/公営水道・集中プロパンガス・中部電力・公共下水・側溝 完成日/2025年7月2日 引渡し可能日/2025年7月31日 その他/景観法、絶対高さ制限10m、都市再生特別措置法、1m壁面後退 情報更新日/2026年3月1日 次回更新予定日/2026年3月15日
フォトギャラリー



間取り
号地詳細
| 所在地 | 三重県四日市市八千代台 | ||
|---|---|---|---|
| 敷地面積 |
182.99m²
(55.35坪) |
建物面積 | 115.95m²
(35.07坪) |
| 総敷地面積 | 1450.58m² (438.80坪) | 建ぺい率 | 60% |
| 容積率 | 100% | 地目 | 宅地 |
| 用途地域 | 第一種低層住居専用地域 | 都市計画法 | 市街化区域 |
| 構造 | 木造二階建て(在来工法) | 駐車場 | 3台 |
| 道路 | 南西側幅員約4.5m、北西側幅員約5.0mの公道に接する |
||
| 施設 | 公営水道・集中プロパンガス・中部電力・公共下水・側溝 | ||
| 建築確認番号 | 確認サービス第KS125-0410-50836号 | 取引態様 | 一般仲介 |
| 完成日 | 2025年7月2日 | 入居可能日 | 2025年7月31日 |
| 売主 | 株式会社AVANTIA (国土交通大臣免許(6)第5803号) | ||
| その他 | 景観法、絶対高さ制限10m、都市再生特別措置法、1m壁面後退 | ||
| 情報更新日 | 2026年3月1日 | 次回更新 予定日 |
2026年3月15日 |
※「-」と表示されている項目については、情報提供会社にご確認ください。
※「建物30年延長保証」、「建物20年延長保証」は引渡し10年目ごとに有償点検を行い、必要な箇所に有償のメンテナンスの実施したお客様が対象になります。
所在地/三重県四日市市八千代台 総敷地面積/1450.58m² (438.80坪) 敷地面積/179.14m² (54.18坪) 建物面積/115.73m² (35.00坪) 建ぺい率/60% 容積率/100% 地目/宅地 用途地域/第一種低層住居専用地域 都市計画法/市街化区域 構造/木造二階建て(在来工法) 道路/南西側幅員約4.5mの公道に接する 駐車場/3台 建築確認番号/確認サービス第KS125-0410-50838号 施設/公営水道・集中プロパンガス・中部電力・公共下水・側溝 完成日/2025年7月2日 引渡し可能日/2025年7月31日 その他/景観法、絶対高さ制限10m、都市再生特別措置法、1m壁面後退 情報更新日/2026年3月1日 次回更新予定日/2026年3月15日
フォトギャラリー







間取り
号地詳細
| 所在地 | 三重県四日市市八千代台 | ||
|---|---|---|---|
| 敷地面積 |
179.14m²
(54.18坪) |
建物面積 | 115.73m²
(35.00坪) |
| 総敷地面積 | 1450.58m² (438.80坪) | 建ぺい率 | 60% |
| 容積率 | 100% | 地目 | 宅地 |
| 用途地域 | 第一種低層住居専用地域 | 都市計画法 | 市街化区域 |
| 構造 | 木造二階建て(在来工法) | 駐車場 | 3台 |
| 道路 | 南西側幅員約4.5mの公道に接する |
||
| 施設 | 公営水道・集中プロパンガス・中部電力・公共下水・側溝 | ||
| 建築確認番号 | 確認サービス第KS125-0410-50838号 | 取引態様 | 一般仲介 |
| 完成日 | 2025年7月2日 | 入居可能日 | 2025年7月31日 |
| 売主 | 株式会社AVANTIA (国土交通大臣免許(6)第5803号) | ||
| その他 | 景観法、絶対高さ制限10m、都市再生特別措置法、1m壁面後退 | ||
| 情報更新日 | 2026年3月1日 | 次回更新 予定日 |
2026年3月15日 |
※「-」と表示されている項目については、情報提供会社にご確認ください。
※「建物30年延長保証」、「建物20年延長保証」は引渡し10年目ごとに有償点検を行い、必要な箇所に有償のメンテナンスの実施したお客様が対象になります。
お子様のお勉強やデスクワークに重宝するカウンターを設置しました。
大型ランドリースペースも魅力のお家です!