九州版 トップページ > 物件検索 > 検索結果一覧 > 【AVANTIA 01】太宰府市高雄1期
お知らせ
◆2025年2月完成予定!◆
◇西鉄バス「緑台公民館前」停まで徒歩6分
◇西鉄天神太宰府線「西鉄五条」駅まで徒歩34分
◇太宰府南小学校まで徒歩4分
◇太宰府東中学校まで徒歩4分
◇◆AVANTIAクラブ会員募集中◆◇
会員登録で、この物件の詳細・写真等の
限定情報が今すぐ閲覧可能に!
新規会員登録でAmazonギフトカードプレゼント!
↓↓ 物件の詳細情報公開中 ↓↓

「大宰府南小学校」徒歩7分、「大宰府東中学校」徒歩10分。お子様がいらっしゃるご家庭には安心の立地です。全棟に設けられた畳コーナーは、「ゲストルーム」「お子様とのくつろぐ空間」など使い勝手◎。
コンセプト
◆スペック
☆住宅性能表示5項目取得のZEH住宅☆
【一次エネルギー消費量等級6】
年間の光熱費が省エネ住宅に比べ20%削減できるエコ住宅です。
【断熱等性能等級5】
高性能グラスウール24K搭載。冬は暖かく、夏は涼しい快適な生活ができます。
【劣化対策等級3】
建物を長寿命化。地盤・土台・外壁の軸組などへの劣化対策により3世代の暮らしを見守る家。


ロケーション
性能
太陽光のエネルギーで電気を創る太陽光発電システムと、創った電気を効率よく使うためのクラウドHEMS、そして大切なエネルギーを無駄にしない省エネアイテムを採用し、環境へ配慮しながら毎月のランニングコストが抑えられます。
設備



底面は傷が目立ちにくく、奥行きワイドなステンレスシンク。小物置き付きでシンク周りの小物をすっきり収納できます。ストック類や普段使わないものを分類できる機能的な収納のキャビネットはソフトクローズレール仕様で静かにピタッと閉まる、安全な引き出し。






水栓に触れなくても手を差し出すだけでセンサーが感知し自動で水が出る自動吐水、ハンドル操作で手動吐水も可能です。三面鏡のミラーキャビネットはこれまで収納するのが難しかった大きなドライヤーやシェーバーが収納可能に! トレイの高さはお好みに合わせて調節できます。






水滴にたっぷりの空気を含ませることで、ボリュームのある浴び心地と節水の両立を実現したシャワーヘッド。
特殊な表面処理で汚れが付きにくく落としやすい床は、独自の断熱層で寒い季節でも冷たく感じにくいキレイサーモフロア。取り外して洗える便利なカウンターも採用しています。






お掃除のしやすいフチのないデザイン。ワンプッシュで「ウォシュレット」前方が持ち上がるので、汚れがたまりやすい便器とのすき間もラクにお掃除できます。渦を巻くようなトルネード洗浄で便器の中をぐるりとしっかり洗浄します。



構造






アフターサービス
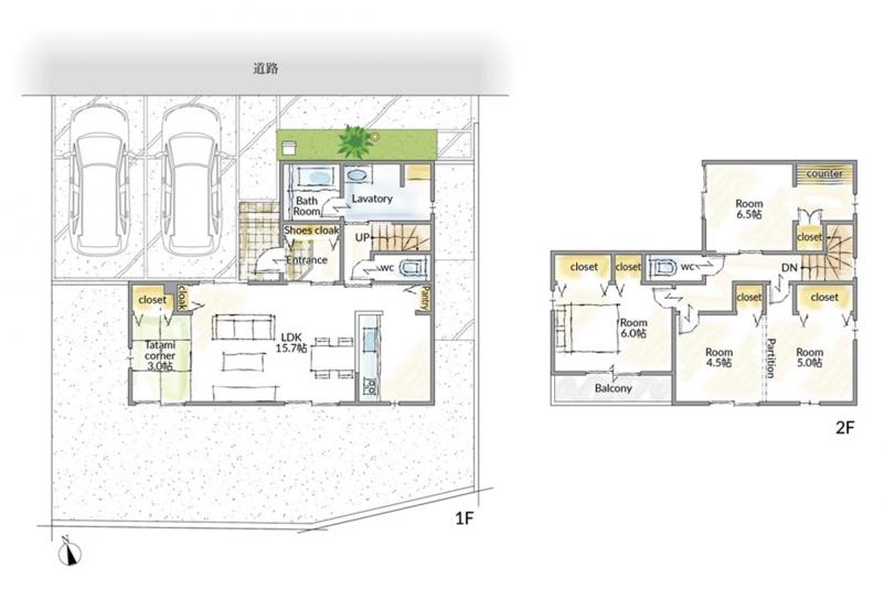
所在地/福岡県太宰府市高雄 総敷地面積/502.32m² (151.95坪) 敷地面積/171.67m² (51.93坪) 建物面積/98.54m² (29.8坪) 建ぺい率/50% 容積率/80% 地目/宅地 用途地域/第一種低層住居専用地域 都市計画法/市街化区域 構造/木造2階建て 道路/ 駐車場/2台 建築確認番号/第24WHEC確健福01397号 施設/公営水道・オール電化・公共下水・側溝 完成予定日/2025年2月1日 引渡し可能日/2025年3月1日 その他/ 情報更新日/2025年12月6日 次回更新予定日/2025年12月20日
フォトギャラリー
号地詳細
| 所在地 | 福岡県太宰府市高雄 | ||
|---|---|---|---|
| 敷地面積 |
171.67m²
(51.93坪) |
建物面積 | 98.54m²
(29.8坪) |
| 総敷地面積 | 502.32m² (151.95坪) | 建ぺい率 | 50% |
| 容積率 | 80% | 地目 | 宅地 |
| 用途地域 | 第一種低層住居専用地域 | 都市計画法 | 市街化区域 |
| 構造 | 木造2階建て | 駐車場 | 2台 |
| 道路 | - |
||
| 施設 | 公営水道・オール電化・公共下水・側溝 | ||
| 建築確認番号 | 第24WHEC確健福01397号 | 取引態様 | 媒介 |
| 完成予定日 | 2025年2月1日 | 入居可能日 | 2025年3月1日 |
| 売主 | 株式会社AVANTIA (国土交通大臣免許(6)第5803号) | ||
| その他 | - | ||
| 情報更新日 | 2025年12月6日 | 次回更新 予定日 |
2025年12月20日 |
※「-」と表示されている項目については、情報提供会社にご確認ください。
※「建物30年延長保証」、「建物20年延長保証」は引渡し10年目ごとに有償点検を行い、必要な箇所に有償のメンテナンスの実施したお客様が対象になります。
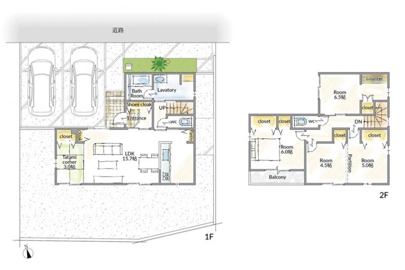
所在地/福岡県太宰府市高雄 総敷地面積/502.32m² (151.95坪) 敷地面積/165.32m² (50.01坪) 建物面積/100.19m² (30.41坪) 建ぺい率/50% 容積率/80% 地目/宅地 用途地域/第一種低層住居専用地域 都市計画法/市街化区域 構造/木造2階建て 道路/ 駐車場/2台 建築確認番号/第24WHEC確健福01398号 施設/公営水道・オール電化・公共下水・側溝 完成日/2025年2月1日 引渡し可能日/2025年3月1日 その他/ 情報更新日/2025年12月4日 次回更新予定日/2025年12月18日
フォトギャラリー
号地詳細
| 所在地 | 福岡県太宰府市高雄 | ||
|---|---|---|---|
| 敷地面積 |
165.32m²
(50.01坪) |
建物面積 | 100.19m²
(30.41坪) |
| 総敷地面積 | 502.32m² (151.95坪) | 建ぺい率 | 50% |
| 容積率 | 80% | 地目 | 宅地 |
| 用途地域 | 第一種低層住居専用地域 | 都市計画法 | 市街化区域 |
| 構造 | 木造2階建て | 駐車場 | 2台 |
| 道路 | - |
||
| 施設 | 公営水道・オール電化・公共下水・側溝 | ||
| 建築確認番号 | 第24WHEC確健福01398号 | 取引態様 | 媒介 |
| 完成日 | 2025年2月1日 | 入居可能日 | 2025年3月1日 |
| 売主 | 株式会社AVANTIA (国土交通大臣免許(6)第5803号) | ||
| その他 | - | ||
| 情報更新日 | 2025年12月4日 | 次回更新 予定日 |
2025年12月18日 |
※「-」と表示されている項目については、情報提供会社にご確認ください。
※「建物30年延長保証」、「建物20年延長保証」は引渡し10年目ごとに有償点検を行い、必要な箇所に有償のメンテナンスの実施したお客様が対象になります。
所在地/福岡県太宰府市高雄 総敷地面積/502.32m² (151.95坪) 敷地面積/165.33m² (50.01坪) 建物面積/101.02m² (30.55坪) 建ぺい率/50% 容積率/80% 地目/宅地 用途地域/第一種低層住居専用地域 都市計画法/市街化区域 構造/木造2階建て 道路/ 駐車場/2台 建築確認番号/第24WHEC確健福01399号 施設/公営水道・オール電化・公共下水・側溝 完成日/2025年2月1日 引渡し可能日/2025年3月1日 その他/ 情報更新日/2025年12月6日 次回更新予定日/2025年12月20日
フォトギャラリー
号地詳細
| 所在地 | 福岡県太宰府市高雄 | ||
|---|---|---|---|
| 敷地面積 |
165.33m²
(50.01坪) |
建物面積 | 101.02m²
(30.55坪) |
| 総敷地面積 | 502.32m² (151.95坪) | 建ぺい率 | 50% |
| 容積率 | 80% | 地目 | 宅地 |
| 用途地域 | 第一種低層住居専用地域 | 都市計画法 | 市街化区域 |
| 構造 | 木造2階建て | 駐車場 | 2台 |
| 道路 | - |
||
| 施設 | 公営水道・オール電化・公共下水・側溝 | ||
| 建築確認番号 | 第24WHEC確健福01399号 | 取引態様 | 媒介 |
| 完成日 | 2025年2月1日 | 入居可能日 | 2025年3月1日 |
| 売主 | 株式会社AVANTIA (国土交通大臣免許(6)第5803号) | ||
| その他 | - | ||
| 情報更新日 | 2025年12月6日 | 次回更新 予定日 |
2025年12月20日 |
※「-」と表示されている項目については、情報提供会社にご確認ください。
※「建物30年延長保証」、「建物20年延長保証」は引渡し10年目ごとに有償点検を行い、必要な箇所に有償のメンテナンスの実施したお客様が対象になります。