東海版 トップページ > 物件検索 > 検索結果一覧 > 【AVANTIA 01】豊田市上野町6期
お知らせ
【南向き】名鉄三河線・豊田線「豊田市」駅 自転車10分!
『陽光とともに暮らす、個性豊かな邸宅』
2026/3/1(日)~4/30(木)まで春のPremiumCampaign実施中!
ご成約特典として30万円相当の家具家電をプレゼント!
◇◆AVANTIAクラブ会員募集中◆◇
会員登録で、この物件の詳細・写真等の
限定情報が今すぐ閲覧可能に!
新規会員登録&アンケートご回答でギフトカードプレゼント!
↓↓ 物件の詳細情報公開中 ↓↓

小学校まで徒歩3分、中学校まで徒歩12分と、お子さまの通学も安心の距離。毎日の送り迎えの負担も少なく、共働きのご家庭にも心強い立地です。さらに、コンビニやスーパーが徒歩5分圏内に揃っており、急なお買い物や日々の食料品の調達にも便利。医療施設も身近に充実しているため、いざという時も安心です。家族みんなが快適に暮らせる、利便性と安心感を兼ね備えたロケーションです。
コンセプト
↓↓見学予約・詳しい資料は下記ボタンから↓↓
□□物件の特徴□□
■1号地
・可動棚付きで見やすい大型パントリー
高さを自由に調整できる可動棚を備えた大容量パントリー。食材や日用品のストックはもちろん、調理家電や防災用品までしっかり収納できます。見やすく整理しやすい設計で、キッチンまわりをいつでもすっきりと保てます。
・LDK17.2帖+3帖のタタミコーナー付き
広々17.2帖のLDKに、くつろぎの3帖タタミコーナーをプラス。お子さまの遊び場やお昼寝スペース、来客時の応接など、多目的に活用できます。家族が自然と集まる、心地よい一体空間です。
・将来間仕切りが可能な洋室
お子さまの成長やライフスタイルの変化に合わせて、将来的に2部屋へ分けられる設計。今は広々と使い、必要なタイミングでプライベート空間を確保できます。長く快適に暮らせる工夫が詰まっています。
・洋室最大9.7帖のゆとり空間
最大9.7帖のゆとりある洋室は、主寝室としても十分な広さ。ベッドやデスクを置いてもゆったりとした空間を確保でき、収納計画もしやすい快適な居室です。
■2号地
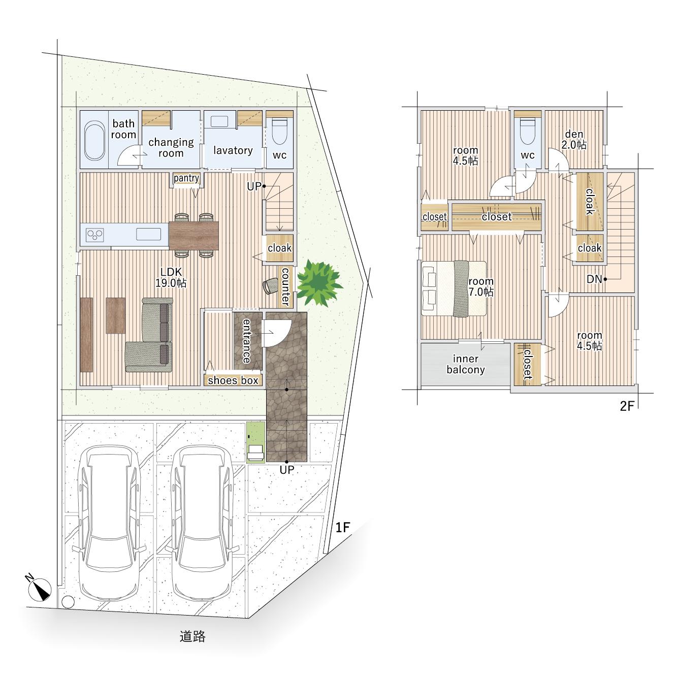
・家族がゆったり寛ぐ、19帖の開放LDK
家族みんながゆったりと過ごせる、開放感あふれる19帖のLDK。リビング・ダイニング・キッチンが一体となった空間設計で、日常も来客時も快適にお過ごしいただけます。
・暮らし広がる、多目的キッチンカウンター
お子さまがお手伝いをするときの作業スペースとして、またご家族でお菓子作りを楽しむときにも活躍する便利なカウンター。調理中にキッチンがいっぱいになった際の一時置き場としても使え、配膳準備や家事の効率もアップします。家族のコミュニケーションが自然と生まれる、うれしいプラス空間です。
・玄関すっきり、大容量シューズクローク
靴はもちろん、ベビーカーやアウトドア用品までしっかり収納できる大容量設計。玄関まわりをすっきりと保ち、来客時も美しい空間を演出します。
■3号地
・玄関からすぐにつながるリビング&リビング階段
玄関を入るとすぐに広がるリビング空間。自然と家族が顔を合わせる動線設計で、毎日の「ただいま」がもっと温かい時間に。リビング階段を採用し、コミュニケーションが生まれやすい、つながりを大切にした住まいです。
・水回りを集約した家事ラク動線
キッチンから洗面室・脱衣室・浴室へとスムーズにつながる効率的なレイアウト。移動が少なく、掃除もしやすい設計で、毎日の家事負担を軽減します。洗面所とは別に脱衣所を設け、使い勝手とプライバシーにも配慮しました。
・2帖の書斎スペース付き
在宅ワークや読書、趣味の時間にちょうどいい2帖の書斎スペースを確保。リビングとは程よい距離感で、家族の気配を感じながらも集中できる、自分だけの落ち着いた空間です。
\ 担当者コメント /
整えられた美しい街並みに佇む、南向きで日当たり良好な住まい。リビングにはたっぷりの陽光が差し込み、明るくあたたかな毎日をお過ごしいただけます。
また小学校まで徒歩3分と通学も安心。さらに、スーパーやコンビニが徒歩5分圏内に揃い、忙しい共働き世帯にも嬉しい便利な立地です。利便性と穏やかな住環境を兼ね備えた、家族にやさしいロケーションです。
□□周辺環境□□
・名鉄三河線・豊田線「豊田市」駅 自転車10分
・とよたおいでんバス「広川町7丁目」停 徒歩5分
・寺部小学校 徒歩3分
・高橋中学校 徒歩12分
・寺部こども園 徒歩7分
・花ヶ崎公園 徒歩3分
・広川公園 徒歩6分
・ファミリーマート 豊田上野町店 徒歩3分
・まごころ市場 加茂川店 徒歩4分
・メグリアミニ 加茂川店 徒歩5分
・イオン 高橋店 徒歩8分
・みずこし歯科 徒歩4分
・かみや外科クリニック 徒歩7分
・碧海信用金庫 豊田東支店 徒歩5分
・豊田高橋郵便局 徒歩9分 など
□□建物について□□
AVANTIAが自信を持ってお届けする
【AVANTIA 01(ゼロワン)】シリーズ。
一年を通じて快適に暮らせる性能や安心して暮らせる構造、
奇をてらわず家族に長く寄り添う間取りやデザイン。
理想の我が家を実現するために、
最高の程よさで最良の住まいを
「AVANTIA 01」がカタチにします。
\ AVANTIA 01は、『ZEH水準の家』 /
2030年にはZEH水準の省エネ住宅が、
新築住宅の基準になる予定ですが、
AVANTIA 01は既にZEH水準の家をご提供しております!
安心で快適な暮らしの質を高めてくれる、優れたスペック▽
■シンプルなデザインと上質な素材や機能性な建物設備
■AVANTIAは、住宅性能表示制度最大5項目で最高等級取得
■建築物省エネルギー性能表示制度「BELS」取得
■太陽光発電システム搭載
ZEH水準のAVANTIA 01の家ならエネルギーの使用量を
削減でき日々の光熱費を抑えることができるほか、
初期費用についてもお得な優遇措置が用意されています!
時代が求めるサステナブルで暮らしやすい住まいを追求し、
進化したAVANTIAの01シリーズ。
\ 常 時 見 学 予 約 & 資 料 請 求 受 付 中 /
ご購入を検討中の方、AVANTIAの土地・建物を見てみたい方、
注文住宅の参考にしたい方・・・など
お気軽にご見学ください!
見学前にまずは資料を確認したい方には、
AVANTIAのすべてが分かる
カタログと物件資料一式をお送りします!
皆さまの見学予約・お申込みをお待ちしております。
ロケーション
性能
BELSとは「建築物省エネルギー性能表示制度」のことで、新築・既存の建築物の省エネ性能を、第三者評価機関が評価し認定する制度です。取得した家での暮らしは電気代の節約ができるだけでなく、住宅ローン減税や、国や自治体の省エネ住宅に対する補助金などを活用することもできます。
ZEH水準(等級5)の高い断熱性能を取得。AVANTIA01の家は『夏涼しく、冬暖かい。』住む人にも環境にも優しい住宅です。※参考:愛知県のZEH強化外皮基準(Ua≦0.6)
※Ua値(W/㎡・K)とは住宅の断熱性能を示す指標で、値が小さいほど熱が逃げにくく、断熱性能が高いことを表します。建物の各部位から逃げる熱を合計し、外皮面積で割って求めます。外皮とは、熱的に境界となる外壁・天井・屋根・窓・ドアなどを差します。
太陽光のエネルギーで電気を創る太陽光発電システムと、創った電気を効率よく使うためのクラウドHEMS、そして大切なエネルギーを無駄にしない省エネアイテムを採用し、環境へ配慮しながら毎月のランニングコストが抑えられます。
国が定めた基準をクリアした長く安心して住める住宅で、耐久性や省エネ性に優れた設計や設備が特徴です。エネルギー効率が高く、CO2削減に貢献します。また、税金面では住宅ローン減税や固定資産税軽減などの優遇措置があり、経済的にもメリットがあります。
MAMORYに使用されている住友ゴムの高減衰ゴムは、地で被災した熊本城の天守閣や、京都・東本願寺の御影堂などの歴史的建造物をはじめ、全国の橋やビルなど、さまざまな場所で安心・安全を支えています。国の歴史的建造物を守るために用いられる高い技術であなたの家と家族を守ります。
設備



底面は傷が目立ちにくく、奥行きワイドなステンレスシンク。小物置き付きでシンク周りの小物をすっきり収納できます。ストック類や普段使わないものを分類できる機能的な収納のキャビネットはソフトクローズレール仕様で静かにピタッと閉まる、安全な引き出し。






毎日使うハブラシなどの衛生用品や化粧品など、細かなものをそれらのきちんと収納できるミラーキャビネットはLEDライトでお顔映りもバッチリ。またキレイアップ水栓は、水栓が上部にあるので周りに水がたまりにくく、水滴を拭き取るだけで簡単キレイ。






水滴にたっぷりの空気を含ませることで、ボリュームのある浴び心地と節水の両立を実現したシャワーヘッド。特殊な表面処理で汚れが付きにくく落としやすい床は、独自の断熱層で寒い季節でも冷たく感じにくいキレイサーモフロア。取り外して洗える便利なマグネットシェルフも採用しています。






手洗いは吐水口とボウルが滑らかにつながったデザイン。便座もシームレスで便座裏には防汚素材を使用し、お掃除のしやすいフチのないデザインとなっています。また、パワーストリーム洗浄で強力な水流が便器鉢の中のすみずみまでしっかりと回り、少ない水で高い洗浄力を発揮します。






インターネットとモノを繋げるIoTを採用。玄関ドア、電動シャッター、インターホン、給湯器など、毎日使う建材・設備機器との連携や、オプションでカメラや各種センサ等も同じアプリで連携でき便利で快適な暮らしを叶えます。



構造






アフターサービス
オーナー様の専用サポートコールセンターでは、24時間365日ご相談を受け付けております。当社のほか、提携業者やメーカーより、急なトラブルに対応できるスタッフ1名が駆けつけて対応措置を行います。特殊な工具や部品を必要としない30分以内の作業であれば、出張費用や対応措置への費用は一切いただきません。
AVANTIA 01は、地歴調査と地盤の専門業者が高度な地盤調査を行って、適切な地盤改良が行われた土地に建設されています。しかし、お引渡しから20年の間に地盤の歪みなどによる不同沈下で床が傾いてしまった、などの瑕疵によって建物が損害を受けた場合には、当社規定の保証をいたしております。
築10年以降で起こるのが、目に見えない部分の経年劣化。給排水管の劣化や破損による水漏れや、躯体の傷み・腐食、床下の傷みなどが考えられます。有償ですが、築10年目、20年目当社を通じて必要な補修・修復工事を行っていただくと、さらに10年間の保証期間が延長でき、最大30年まで安心が続きます。
所在地/愛知県豊田市上野町 総敷地面積/548.60m² (165.95坪) 敷地面積/131.27m² (39.70坪) 建物面積/110.47m² (33.42坪) 建ぺい率/60% 容積率/150% 地目/宅地 用途地域/第一種中高層住居専用地域 都市計画法/市街化区域 構造/木造2階建(在来工法) 道路/南西側 幅員 約4.0m の公道に接する 駐車場/2台 建築確認番号/確認サービス第KS126-0420-51169号 施設/公営水道・都市ガス・中部電力・公共下水・側溝 完成予定日/2026年7月8日 引渡し可能日/2026年8月15日 その他/文化財保護法、洪水浸水想定区域、開発許可番号(変更後):豊開調発第072-017号 情報更新日/2026年4月18日 次回更新予定日/2026年5月2日
フォトギャラリー






間取り
号地詳細
| 所在地 | 愛知県豊田市上野町 | ||
|---|---|---|---|
| 敷地面積 |
131.27m²
(39.70坪) |
建物面積 | 110.47m²
(33.42坪) |
| 総敷地面積 | 548.60m² (165.95坪) | 建ぺい率 | 60% |
| 容積率 | 150% | 地目 | 宅地 |
| 用途地域 | 第一種中高層住居専用地域 | 都市計画法 | 市街化区域 |
| 構造 | 木造2階建(在来工法) | 駐車場 | 2台 |
| 道路 | 南西側 幅員 約4.0m の公道に接する |
||
| 施設 | 公営水道・都市ガス・中部電力・公共下水・側溝 | ||
| 建築確認番号 | 確認サービス第KS126-0420-51169号 | 取引態様 | 一般仲介 |
| 完成予定日 | 2026年7月8日 | 入居可能日 | 2026年8月15日 |
| 売主 | 株式会社AVANTIA (国土交通大臣免許(6)第5803号) | ||
| その他 | 文化財保護法、洪水浸水想定区域、開発許可番号(変更後):豊開調発第072-017号 | ||
| 情報更新日 | 2026年4月18日 | 次回更新 予定日 |
2026年5月2日 |
※「-」と表示されている項目については、情報提供会社にご確認ください。
※「建物30年延長保証」、「建物20年延長保証」は引渡し10年目ごとに有償点検を行い、必要な箇所に有償のメンテナンスの実施したお客様が対象になります。
所在地/愛知県豊田市上野町 総敷地面積/548.60m² (165.95坪) 敷地面積/130.14m² (39.36坪) 建物面積/101.87m² (30.82坪) (インナーバルコニー3.72㎡含む) 建ぺい率/60% 容積率/150% 地目/宅地 用途地域/第一種中高層住居専用地域 都市計画法/市街化区域 構造/木造2階建(在来工法) 道路/南西側 幅員 約4.0m の公道に接する 駐車場/3台 建築確認番号/確認サービス第KS126-0420-50621号 施設/公営水道・都市ガス・中部電力・公共下水・側溝 完成予定日/2026年7月15日 引渡し可能日/2026年8月25日 その他/文化財保護法、洪水浸水想定区域 情報更新日/2026年4月18日 次回更新予定日/2026年5月2日
フォトギャラリー


間取り
号地詳細
| 所在地 | 愛知県豊田市上野町 | ||
|---|---|---|---|
| 敷地面積 |
130.14m²
(39.36坪) |
建物面積 | 101.87m²
(30.82坪) (インナーバルコニー3.72㎡含む) |
| 総敷地面積 | 548.60m² (165.95坪) | 建ぺい率 | 60% |
| 容積率 | 150% | 地目 | 宅地 |
| 用途地域 | 第一種中高層住居専用地域 | 都市計画法 | 市街化区域 |
| 構造 | 木造2階建(在来工法) | 駐車場 | 3台 |
| 道路 | 南西側 幅員 約4.0m の公道に接する |
||
| 施設 | 公営水道・都市ガス・中部電力・公共下水・側溝 | ||
| 建築確認番号 | 確認サービス第KS126-0420-50621号 | 取引態様 | 一般仲介 |
| 完成予定日 | 2026年7月15日 | 入居可能日 | 2026年8月25日 |
| 売主 | 株式会社AVANTIA (国土交通大臣免許(6)第5803号) | ||
| その他 | 文化財保護法、洪水浸水想定区域 | ||
| 情報更新日 | 2026年4月18日 | 次回更新 予定日 |
2026年5月2日 |
※「-」と表示されている項目については、情報提供会社にご確認ください。
※「建物30年延長保証」、「建物20年延長保証」は引渡し10年目ごとに有償点検を行い、必要な箇所に有償のメンテナンスの実施したお客様が対象になります。
所在地/愛知県豊田市上野町 総敷地面積/548.60m² (165.95坪) 敷地面積/130.56m² (39.49坪) 建物面積/100.63m² (30.44坪) (インナーバルコニー3.72㎡含む) 建ぺい率/60% 容積率/150% 地目/宅地 用途地域/第一種中高層住居専用地域 都市計画法/市街化区域 構造/木造2階建(在来工法) 道路/南西側 幅員 約4.0m、南東側 幅員 約4.0m の公道に接する 駐車場/2台 建築確認番号/確認サービス第KS126-0420-50622号 施設/公営水道・都市ガス・中部電力・公共下水・側溝 完成予定日/2026年7月13日 引渡し可能日/2026年8月25日 その他/文化財保護法、洪水浸水想定区域 情報更新日/2026年4月18日 次回更新予定日/2026年5月2日
フォトギャラリー


間取り
号地詳細
| 所在地 | 愛知県豊田市上野町 | ||
|---|---|---|---|
| 敷地面積 |
130.56m²
(39.49坪) |
建物面積 | 100.63m²
(30.44坪) (インナーバルコニー3.72㎡含む) |
| 総敷地面積 | 548.60m² (165.95坪) | 建ぺい率 | 60% |
| 容積率 | 150% | 地目 | 宅地 |
| 用途地域 | 第一種中高層住居専用地域 | 都市計画法 | 市街化区域 |
| 構造 | 木造2階建(在来工法) | 駐車場 | 2台 |
| 道路 | 南西側 幅員 約4.0m、南東側 幅員 約4.0m の公道に接する |
||
| 施設 | 公営水道・都市ガス・中部電力・公共下水・側溝 | ||
| 建築確認番号 | 確認サービス第KS126-0420-50622号 | 取引態様 | 一般仲介 |
| 完成予定日 | 2026年7月13日 | 入居可能日 | 2026年8月25日 |
| 売主 | 株式会社AVANTIA (国土交通大臣免許(6)第5803号) | ||
| その他 | 文化財保護法、洪水浸水想定区域 | ||
| 情報更新日 | 2026年4月18日 | 次回更新 予定日 |
2026年5月2日 |
※「-」と表示されている項目については、情報提供会社にご確認ください。
※「建物30年延長保証」、「建物20年延長保証」は引渡し10年目ごとに有償点検を行い、必要な箇所に有償のメンテナンスの実施したお客様が対象になります。
キッチン横には可動棚付きの大型パントリーを設置。収納力が高く、一目でどこに何があるか分かるため、家事もスムーズに行えます。
2階の9.7帖の洋室は、将来間仕切りが可能な設計。ご家族の成長やライフスタイルの変化に合わせて、柔軟に対応できる住まいです。